2025.10.24
完成物件のご紹介
完成物件のご紹介【大町西の戸建てリノベーション】
物件探しからお手伝いをさせていただいたF様邸。
F様ご夫婦は、とても穏やかでお人柄の柔らかいおふたり。
打合せのたびに丁寧にご意見を交わしてくださり、
終始あたたかな空気の中で計画を進めることができました。
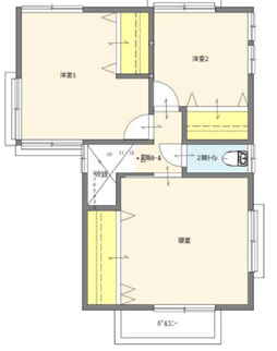
プランや完成後の写真はこちらからご覧ください。

そんなF様邸、最大のこだわりは
「1階で家事が完結すること。2階は寝るだけの空間に。」という明快なプランです。


キッチンを中心に、ランドリールームやウォークインクローゼットを1階に配置。
「料理・洗濯・身支度」がワンフロアで完結する動線で、日々の暮らしがぐっとスムーズになりました。
さらに、行き止まりのない回遊動線も魅力のひとつ。







洗面スペースと脱衣スペースを分けることで、
家族それぞれが気兼ねなく使える工夫も。


朝の支度や入浴後の動線もスムーズになり、
毎日の小さなストレスを減らしてくれます◎
お引渡しからちょうど4年。
小さかったお子さまも、今ではすっかり成長されていることでしょう。
ご家族の歩みとともに少しづつ味わいを増していくF様邸。
愛着の湧くお住まいになっていれば、とても嬉しく思います。
F様、これからも末永くよろしくお願いいたします😊

#戸建てリノベーション#マンションリノベーション#広島リノベーション#らしく暮らす#相談会#中古住宅購入



