STORY
ご実家の離れを、娘さまご家族が新たな住まいとして使われることになり、その住まいをより快適に過ごせるようリノベーションのご相談をいただきました。もともとはおばあ様がお住まいだった離れに、新しい家族の暮らしが始まるにあたり、現代のライフスタイルに合わせた住まいへの改修を計画しました。
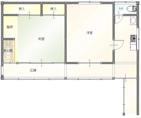
今回のリノベーションでは、間取りの変更をはじめ、キッチンや洗面などの住設機器の交換、内装の全面改修、そして外壁の漆喰塗り替えを行いました。窓の交換や玄関ドアの新設、加えて断熱・耐震性能の向上も図っています。母屋と離れは廊下でつながっており、浴室は母屋にあるのでご家族で共有する計画としました。
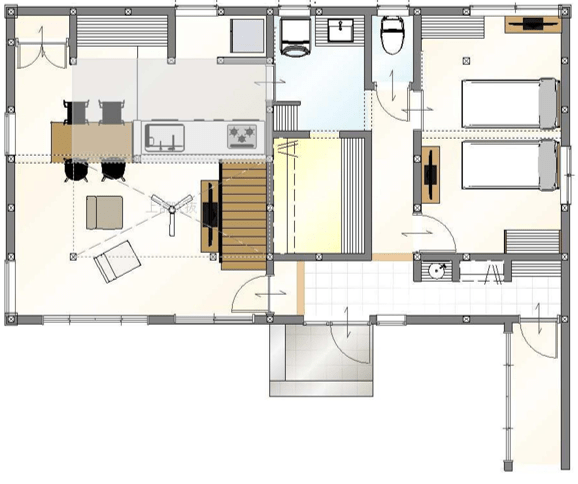
ご家族がゆったりと団らんできる空間を目指し、将来的に2部屋に仕切れるように計画した洋室を設けたほか、リビングにはロフトを設けて居室スペースを確保しました。LDKはキッチンを中心としたレイアウトにし、自然と家族が集まれるあたたかみのある空間に仕上げています。また、離れに専用の玄関ドアを新設することで、お互いに気を遣わず、程よい距離感で母屋とのつながりを保ちつつ、心地よく暮らせるよう工夫しました。
今回のリノベーションにはいくつか課題が。
離れの建物は都市計画区域外に建っており、約40年前の新築時には建築確認申請という手続きが不要でした。また、既存の図面が一切存在しない状況からのスタートに。
まず実測によって正確な既存図面を作成しながら、その場で構造補強計画を同時進行で進めていく必要がありました。
土壁+漆喰の外壁――風合いと性能の両立
元の離れの外壁は、伝統的な土壁に漆喰を塗ったもの。これらはデザイン的にも風合いや温かみが魅力です。その魅力を失わずに、かつ性能も確保することが課題です。
そこで、漆喰の質感を生かしつつ、美しさだけでなく、調湿性や断熱性もある外壁仕上げを実現しています。
今回の施工事例では、技術的な課題がいくつかありましたが、それらを克服することで、趣と性能を兼ね備えた空間を意識しました。
これからも、見た目の美しさと性能を両立を心がけていきたいと思います。















